(0)
 
*Mandatory fields
**Fill at least one of the two fields
Accordance with the Data Protection Act of 6 January 1978 (french laws), the information provided is strictly confidential and can not be disclosed to third parties without your permission. Article 27 gives you the ability to access them and have them corrected if necessary. if you do not wish us to retain them, we would appreciate you letting us know by mail or email.
 
2-room apartment - New Program 2915 Ave du Prince Rainier ...
Reference CR4442
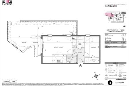
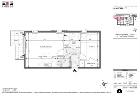
Flat - 2 rooms - 54 m²
BEAUSOLEIL ( 06240 )
Selling price : 535,000 €

Off-plan sale program

Living in the Sublime Côte d'Azur Authentic and exuberant, sea or mountain, the Cote d'Azur never ceases to amaze with its charm and landscapes. This new Mediterranean address is located in Beausoleil, in a wooded setting for lovers of a unique art of living.

Surrounded by greenery and with the Parc Grima as its neighbor, the address benefits from a strategic location: close to Beausoleil town center, just a few minutes from Monaco, and a 30-minute drive from Nice airport.

Set in a tree-lined garden, this architecturally sober development features large windows, a promise of light and unobstructed views all the way to the sea. 8 exceptional apartments from studio to 5-room, with generous volumes and exceptional amenities.

On the top floor, a 5-room duplex apartment with an interior patio and roof terrace offering panoramic views. Parking and cellars are available for all units. Delivery: 4th Quarter 2028

Information on the risks to which this property is exposed is available on the Géorisques website: www.georisques.gouv.fr.
 
Energy efficiency

Not subject to energetic diagnostics.
Reference date for the energy prices used to establish this estimate: 15/04/2025

Building
Year of construction
2028
Main information
Internal condition
New/Renovated
Energy properties
Heater
Individual
Indoor arrangements
Floor
Ground
Total surface
54.22 m²
Rooms
2
Bedroom(s)
1
Outdoor arrangements
Terrace(s)
1
Garden(s)
46 m²
 
Open cookie management panel
Close panel
This site uses cookies to ensure its proper functioning. It also uses cookies from third party services to provide advanced functionality. At any time, you can choose which services you wish to activate or decide to withdraw your consent.
 
Customise accepted services
You are free to choose which services you wish to enable. By authorising these third party services, you agree to the deposit and reading of cookies and the use of tracking technologies necessary for their proper functioning. By withdrawing your consent for some of these services, some website features may no longer function.
Website navigation  Read more
The site writes a session cookie to enable it to function properly and to help with navigation. It cannot be deactivated.
Usage: 1 cookie, records the session identifier.
Time to live: The cookie is present during the entire session on the site. It becomes obsolete after 24 minutes of inactivity.
Mandatory
Google Map  Read more
Display agency and real estates location on an interactive map, based on Google Map technologies.
Media Popup
Display videos from Youtube or Dailymotion.
Google Analytics  Read more
Records website statistics.
ReCaptcha  Read more
Allows to verify that visitors are humain while submitting forms.
 
Accept all Refuse all Manage